







Invisible Structures
FINALIST PROJECT
“Curator Project Proposal for the Argentine Pavilion International Architecture Biennale of Venice 2023: Laboratory of the Future”
Associates: Ana Babaya, Leandro Castro y Alejandro Puente
Venice, IT
Year 2023
Invisible Structures proposes the construction of the laboratory of the future from the act of remembering. In the age of immediacy, remembering is an act of resis- tance. Stopping, looking, and connecting with our own, local knowledge, which has already existed in our territories for hundreds of years, becomes fundamental to us as a starting point to discuss the future of the discipline.
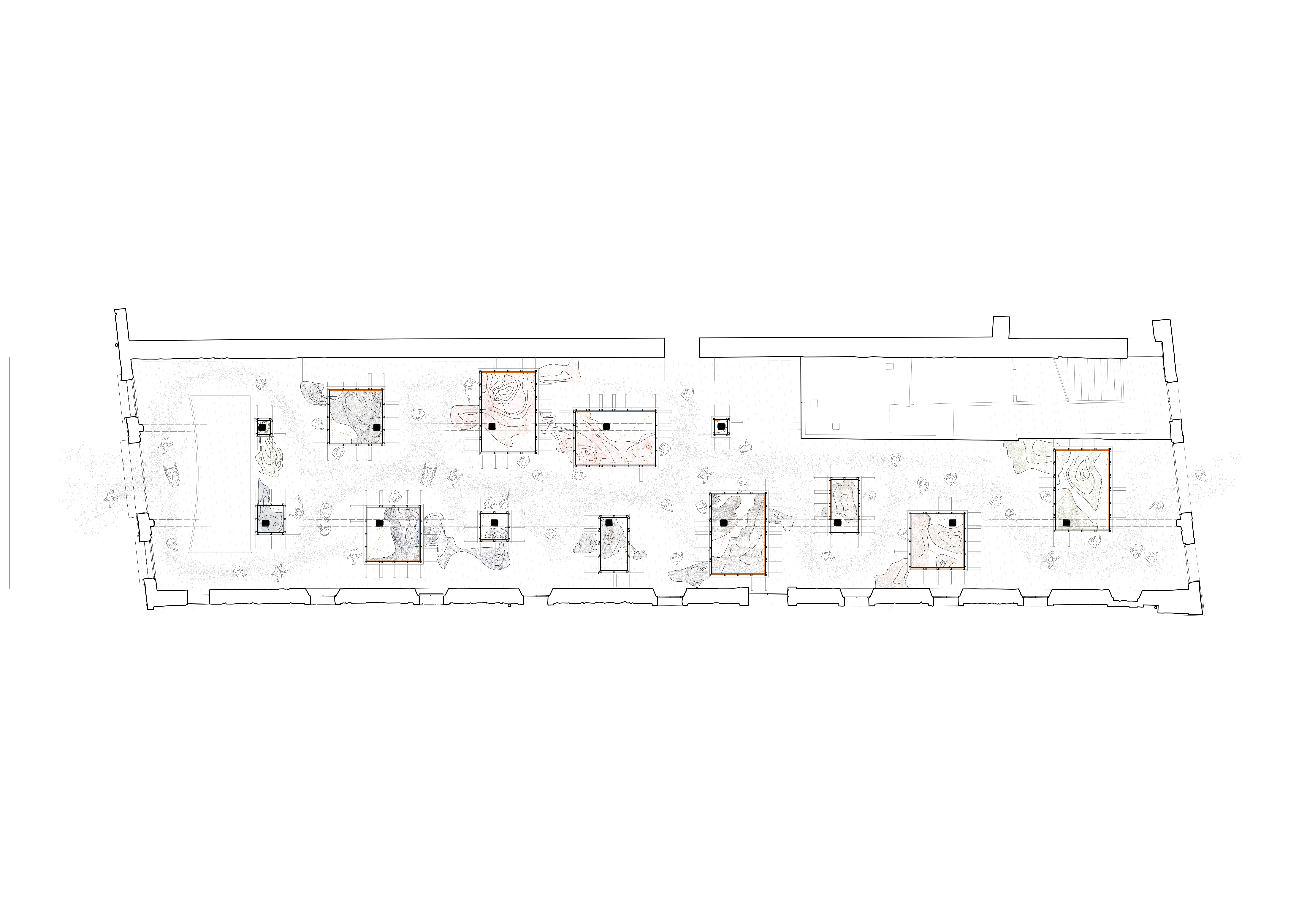
The Pavilion is born from the complexity of our territories, with the aim of fra- ming and valuing those common architectures that have historically provided answers to climatic, territorial, social and political problems. The construction of the pavilion is very simple. 13 coffers made of formwork wood are progressively built around each of the columns. Each coffer shows a particular territory of the country, either the Puna in the north-west, or the humid Jungle of Misiones in the north-east, the Patagonia in the south, and so on.
The sum of these architectures makes up the necessary substrate for any legi- timate laboratory built from the multiplicity of territories and actors. A laboratory that does not forget, that does not start from scratch; a federal and Argentinian laboratory.
